Aller à :

  • Aller à la recherche
  • Aller au menu principal
  • Aller au contenu
0
  • BIENS À LA VENTE
    • Maisons
    • Appartements
    • Terrains
    • Autres
  • BIENS À LA LOCATION
    • Maisons
    • Appartements
    • Autres
  • Estimation
  • NOUS CONTACTER
  • NOS SECTEURS
0
VotreRecherche
Dans un rayon de
Budget
entre et €
Min €
Max €
  1. Accueil
  2. Vente
  3. Pyrenees atlantiques
  4. Araujuzon
  5. Terrain a batir
  6. Terrain viabilise 1 237 m a 5 min de navarrenx

Terrain viabilisé 1 237 m² – À 5 min de Navarrenx Araujuzon (64190)

30 214 €
Réf : 6415

Présentation

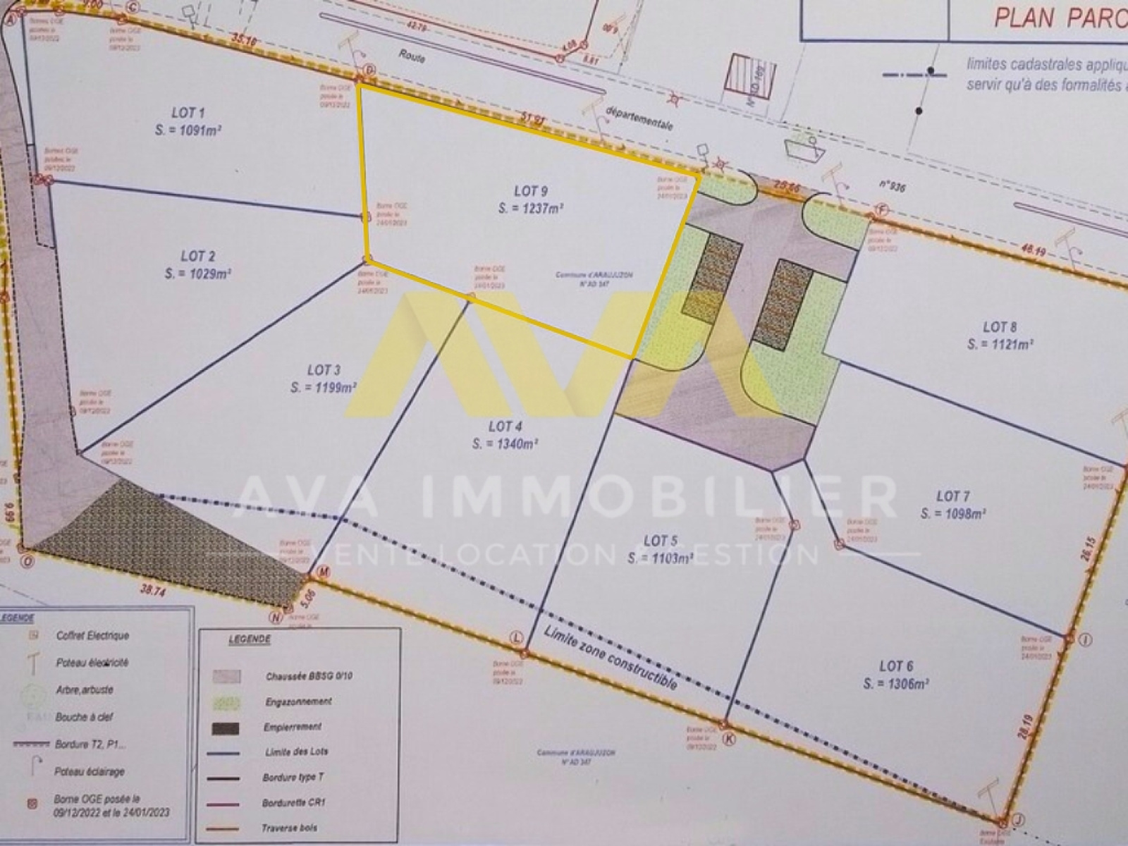
Dans un lotissement calme et agréable de 9 lots, ce terrain plat de 1 237 m² (lot n°9) est parfait pour concrétiser votre projet de construction dans un cadre paisible et bien situé.

Les raccordements sont en place : coffrets d’électricité, téléphone et regard d’eau.
Assainissement individuel à prévoir.

Emplacement privilégié, à seulement 5 minutes de Navarrenx, en direction de Sauveterre-de-Béarn.

Un terrain prêt à bâtir, dans un secteur recherché. À voir sans attendre !


Les informations sur les risques auxquels ce bien est exposé sont disponibles sur le site Géorisques

Le bien en vidéo

SpotVideo

Les infos
essentielles

Caractérisque Valeurs
Code postal 64190
surface terrain 1 237 m²
Terrain constructible OUI

Les + du bien

Détails +

Caractérisque Valeurs
Terrain Viabilisé OUI
Raccordement eau OUI
Raccordement électricité OUI
Raccordement téléphone OUI

Financier

Caractérisque Valeurs
Prix de vente 30 214 €
Les honoraires d'agence seront intégralement à la charge du vendeur  

Copropriété

Caractérisque Valeurs
Copropriété NON

Quartier

Cette offre
vous intéresse
Contacter l'agence
0559662360

* champs obligatoires

Les informations recueillies sur ce formulaire sont enregistrées dans un fichier informatisé par La Boite Immo agissant comme Sous-traitant du traitement pour la gestion de la clientèle/prospects de l'Agence / du Réseau qui reste Responsable du Traitement de vos Données personnelles.
La base légale du traitement repose sur l’intérêt légitime de l'Agence / du Réseau.
Elles sont conservées jusqu'à demande de suppression et sont destinées à l'Agence / au Réseau.
Conformément à la loi « informatique et libertés », vous pouvez exercer votre droit d'accès aux données vous concernant et les faire rectifier en contactant l'Agence / le Réseau.
Si vous estimez, après avoir contacté l'Agence / le Réseau, que vos droits « Informatique et Libertés » ne sont pas respectés, vous pouvez adresser une réclamation à la CNIL.
Nous vous informons de l’existence de la liste d'opposition au démarchage téléphonique « Bloctel », sur laquelle vous pouvez vous inscrire ici : https://www.bloctel.gouv.fr 
Dans le cadre de la protection des Données personnelles, nous vous invitons à ne pas inscrire de Données sensibles dans le champ de saisie libre
Ce site est protégé par reCAPTCHA, les Politiques de Confidentialité et les Conditions d'Utilisation de Google s'appliquent.

Nos outils
Imprimer Imprimer
Partager le bien
Calculatrice financière

* Champ obligatoire

Partager l'annonce

* champs obligatoires

Les informations recueillies sur ce formulaire sont enregistrées dans un fichier informatisé par La Boite Immo agissant comme Sous-traitant du traitement pour la gestion de la clientèle/prospects de l'Agence / du Réseau qui reste Responsable du Traitement de vos Données personnelles.
La base légale du traitement repose sur l’intérêt légitime de l'Agence / du Réseau.
Elles sont conservées jusqu'à demande de suppression et sont destinées à l'Agence / au Réseau.
Conformément à la loi « informatique et libertés », vous pouvez exercer votre droit d'accès aux données vous concernant et les faire rectifier en contactant l'Agence / le Réseau.
Si vous estimez, après avoir contacté l'Agence / le Réseau, que vos droits « Informatique et Libertés » ne sont pas respectés, vous pouvez adresser une réclamation à la CNIL.
Nous vous informons de l’existence de la liste d'opposition au démarchage téléphonique « Bloctel », sur laquelle vous pouvez vous inscrire ici : https://www.bloctel.gouv.fr 
Dans le cadre de la protection des Données personnelles, nous vous invitons à ne pas inscrire de Données sensibles dans le champ de saisie libre
Ce site est protégé par reCAPTCHA, les Politiques de Confidentialité et les Conditions d'Utilisation de Google s'appliquent.

Partager avec vos proches

Facebook Facebook
Messenger Messenger
Twitter Twitter
WhatsApp WhatsApp
LinkedIn LinkedIn
Copier le lien Copier le lien
Détail des diagnostics énergétiques
DPE GES
DPE ANCIENNE VERSION
Contacter
l'agence

Remplissez ce formulaire, nous ferons de notre mieux pour vous répondre dans les meilleurs délais.

Ava Immobilier
0559662360
E-mail agences@ava-immobilier.com

2, Rue J-B Heugas 64130 MAULEON-LICHARRE

6, Place des Casernes 64190 NAVARRENX

8, Rue Louis Barthou 64400 Oloron Sainte-Marie

TRAD_MELTEM_voscoordonnees
TRAD_MELTEM_voredemande
Règlementation

* Champ obligatoire

Les informations recueillies sur ce formulaire sont enregistrées dans un fichier informatisé par La Boite Immo agissant comme Sous-traitant du traitement pour la gestion de la clientèle/prospects de l'Agence / du Réseau qui reste Responsable du Traitement de vos Données personnelles.
La base légale du traitement repose sur l’intérêt légitime de l'Agence / du Réseau.
Elles sont conservées jusqu'à demande de suppression et sont destinées à l'Agence / au Réseau.
Conformément à la loi « informatique et libertés », vous pouvez exercer votre droit d'accès aux données vous concernant et les faire rectifier en contactant l'Agence / le Réseau.
Si vous estimez, après avoir contacté l'Agence / le Réseau, que vos droits « Informatique et Libertés » ne sont pas respectés, vous pouvez adresser une réclamation à la CNIL.
Nous vous informons de l’existence de la liste d'opposition au démarchage téléphonique « Bloctel », sur laquelle vous pouvez vous inscrire ici : https://www.bloctel.gouv.fr 
Dans le cadre de la protection des Données personnelles, nous vous invitons à ne pas inscrire de Données sensibles dans le champ de saisie libre
Ce site est protégé par reCAPTCHA, les Politiques de Confidentialité et les Conditions d'Utilisation de Google s'appliquent.

Se connecter
Espace propriétaire
Page d'accueil
Adhérents

© 2025 | Tous droits réservés | Traduction powered by Google |

  • Nos honoraires
  • Plan du site
  • Mentions légales
  • Admin
  • Nos liens
  • Politique RGPD
  • LinkedIn

Comme beaucoup, notre site utilise les cookies

On aimerait vous accompagner pendant votre visite. En poursuivant, vous acceptez l'utilisation des cookies par ce site, afin de vous proposer des contenus adaptés et réaliser des statistiques !

Paramétrer

Cookies fonctionnelsCes cookies sont indispensables à la navigation sur le site, pour vous garantir un fonctionnement optimal. Ils ne peuvent donc pas être désactivés.

Statistiques de visitesPour améliorer votre expérience, on a besoin de savoir ce qui vous intéresse !
Les données récoltées sont anonymisées.

?

Google Analytics

En savoir plus